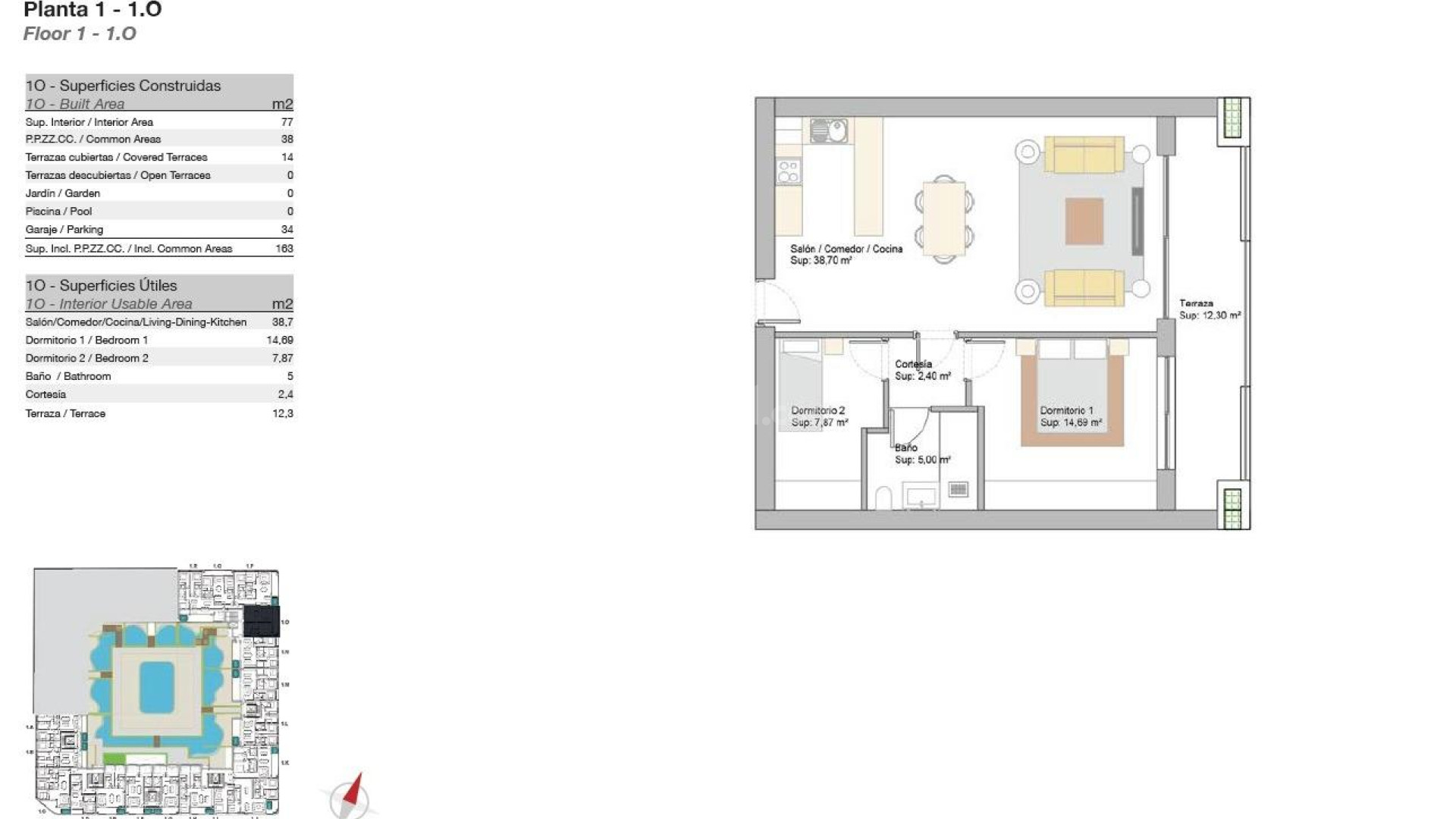
Luxuriöse Neubauwohnungen in Marbella West – Elegantes Wohnen an der Küste in der Nähe von Puerto Banús Ein wegweisendes Bauprojekt im neuen Stadtteil Marbella West Entdecken Sie ein exklusives Wohnprojekt in Marbella West, einem neu geplanten Stadtteil, der neue Maßstäbe für nachhaltiges urbanes Wohnen an der Costa del Sol setzen wird. Das Projekt liegt zwischen Nueva Andalucía und San Pedro de Alcántara, nur 1,4 km vom Strand und eine kurze Autofahrt vom renommierten Yachthafen Puerto Banús entfernt. Der Stadtteil Marbella West verbindet weitläufige Grünflächen, öffentliche Einrichtungen, luxuriöse Gastronomie, erstklassige Schulen und eine niedrige Bebauung, die den Blick und das natürliche Licht bewahrt – und damit einen Lebensstil, der Eleganz und Ruhe in Einklang bringt. Exklusive Apartments mit zeitgemäßem Design Diese bewachte Wohnanlage umfasst 101 neu gebaute Wohnungen, die von eleganten Studios bis hin zu geräumigen Apartments mit 4 Schlafzimmern reichen. Jede Wohnung wurde sorgfältig geplant, um das natürliche Licht und das Leben im Freien zu maximieren, und verfügt über einen offenen Grundriss und große Terrassen. Zu den Immobilientypen gehören: Erdgeschosswohnungen mit privaten Gärten und einigen Einheiten mit Pools im Strandstil Luxuriöse Penthäuser mit Panorama-Dachterrassen und privaten Pools Alle Einheiten verfügen über eine hochwertige Ausstattung und helle, großzügige Grundrisse. Erstklassige Annehmlichkeiten im Resort-Stil Jedes Element der Anlage ist darauf ausgelegt, das Wohlbefinden und den Komfort zu steigern. Die Bewohner genießen eine Vielzahl von luxuriösen Gemeinschaftseinrichtungen, darunter: Infinity-Pool auf dem Dach mit Panoramablick Pool im Strandstil auf Gartenebene mit Sand Beheizter Innenpool und voll ausgestatteter Fitnessraum Spa-Bereich mit Sauna und Umkleideräumen Social Club und Coworking Space 24-Stunden-Sicherheitsdienst, Concierge und Rezeption Mediterrane Landschaftsgärten Tiefgarage mit Ladestationen für Elektroautos und privaten Abstellräumen Erstklassige Lage mit hervorragender Anbindung Das Projekt ist strategisch günstig gelegen und bietet eine unschlagbare Anbindung an die wichtigsten Sehenswürdigkeiten von Marbella: Puerto Banús: 4 km San Pedro de Alcántara: 2 km Nueva Andalucía: 3 km La Quinta Golf: 4,5 km Guadalmina Golf: 5 km Stadtzentrum von Marbella: 10 km Flughafen Málaga: 60 km (ca. 40 Minuten über die Autobahn) Eine kluge Investition im Herzen der Costa del Sol Diese Wohnanlage ist mehr als nur ein Zuhause – sie ist ein Lebensstil. Ob Sie ein ganzjähriges Zuhause, einen Rückzugsort für den Urlaub oder eine vielversprechende Investition suchen, dieses Resort bietet Eleganz, Ruhe und Komfort in einer der vielversprechendsten neuen Gegenden Marbellas. Kontaktieren Sie uns noch heute, um einen privaten Besichtigungstermin zu vereinbaren und sich Ihren Platz in dieser exklusiven neuen Wohnanlage zu sichern.
Diese hier angegebenen Informationen können Fehler enthalten und sind nicht Bestandteil eines Vertrages. Das Angebot kann ohne vorherige Ankündigung geändert oder zurückgezogen werden. Preise beinhalten keine Kaufnebenkosten.