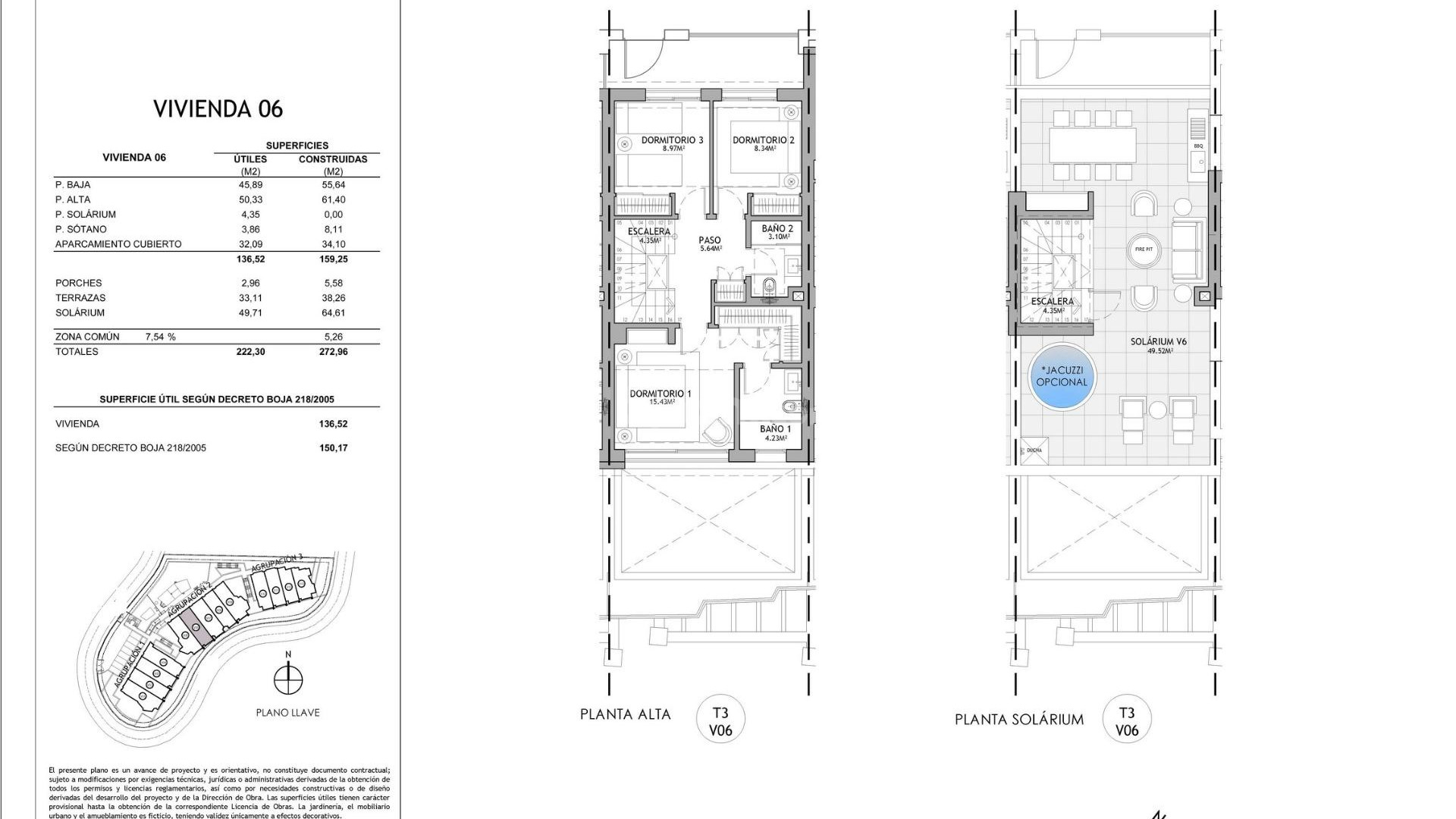
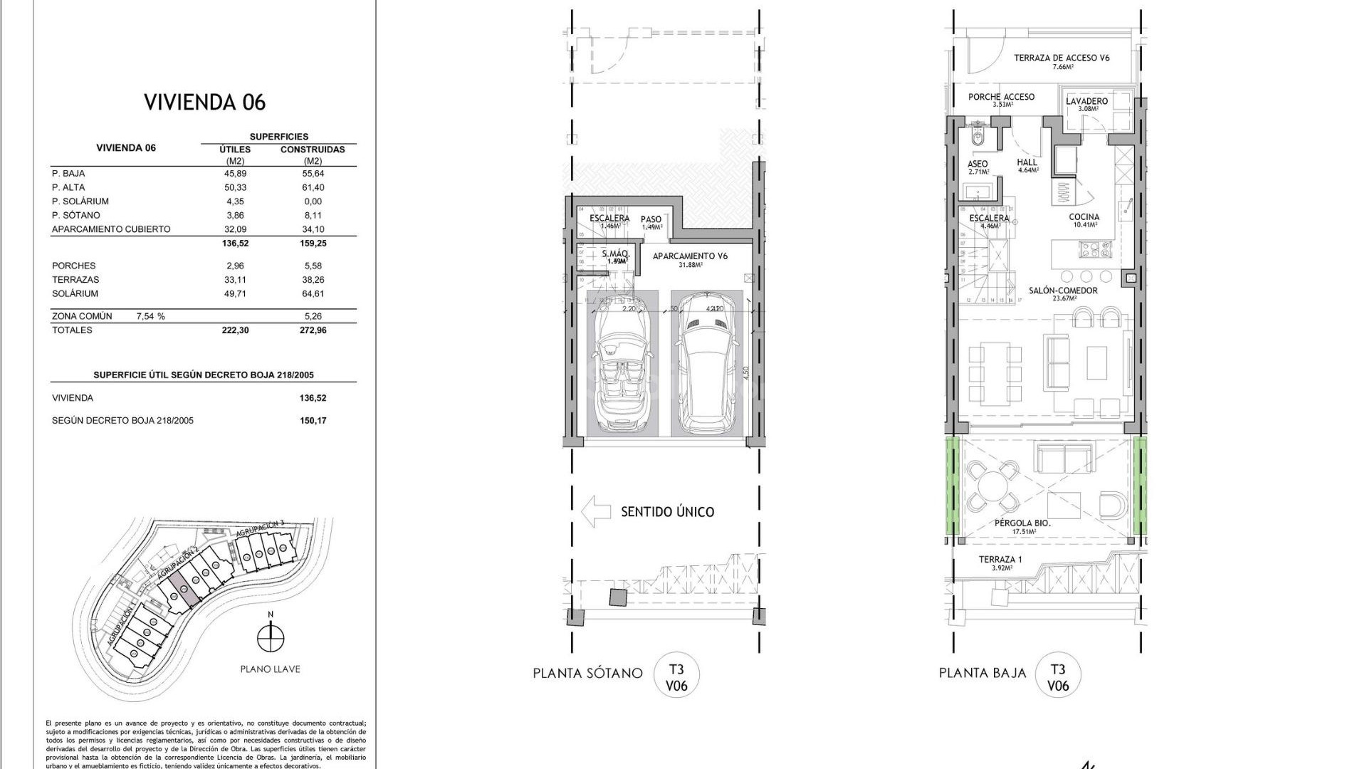
Neubau-Reihenhäuser mit Meerblick in der Nähe des Golfplatzes Miraflores in Calahonda Boutique-Wohnanlage in bester Lage in Calahonda Dieses exklusive Neubauprojekt besteht aus einer Boutique-Kollektion von nur 13 Reihenhäusern mit zwei oder drei Schlafzimmern und Eckreihenhäusern auf einem erhöhten Grundstück in der Nähe des Golfplatzes Miraflores in Calahonda. Die Gegend ist bekannt für ihre ruhige Wohnatmosphäre und bietet gleichzeitig eine hervorragende Anbindung an Strände, Golfplätze und alltägliche Dienstleistungen. Calahonda liegt zwischen Marbella und Fuengirola und ist damit einer der günstigsten und etabliertesten Standorte an der Costa del Sol. Häuser mit Meerblick, Privatsphäre und Ausrichtung Dank ihrer erhöhten Lage und sorgfältigen Ausrichtung genießen alle Häuser von allen Wohnebenen aus einen freien Meerblick. Die Dachterrassen bieten einen beeindruckenden Panoramablick über die Mittelmeerküste und schaffen einen privaten Rückzugsort im Freien für jeden Hausbesitzer. Die Ausrichtung und die architektonische Abschirmung sorgen für eine perfekte Balance zwischen Privatsphäre und ungestörtem Blick. Geräumige Terrassen und offenes Wohnen Die Reihenhäuser sind so konzipiert, dass sie den Wohnraum nach draußen erweitern, mit großzügigen Terrassen, die ideal zum Essen, Entspannen oder Genießen der Meeresbrise sind. Offene Innenräume verbinden den Küchen-Essbereich und das Wohnzimmer mit direktem Zugang zu den Terrassen und schaffen helle und luftige Räume mit durchgehender Sicht auf das Meer. Einige Häuser verfügen auch über private Gärten im Erdgeschoss. Flexible Grundrisse für modernes Wohnen Die Häuser sind auf zwei Etagen verteilt und verfügen über eine private Dachterrasse. Das Erdgeschoss bietet einen offenen Wohn- und Essbereich mit integrierter Küche, Waschküche und Gästetoilette. Im Obergeschoss befinden sich zwei oder drei Doppelschlafzimmer und zwei Badezimmer, darunter ein Hauptschlafzimmer mit eigenem Bad. Mehrere Dachterrassen verfügen über ein Studio, das zusätzlichen vielseitigen Raum für ein Heimbüro oder einen Freizeitbereich bietet. Hochwertige Ausstattung und Komfortmerkmale Alle Immobilien sind mit hochwertigen Materialien und modernen Systemen gebaut. Zur Ausstattung gehören eine vollständig installierte Klimaanlage mit aerothermischem System und voll ausgestattete Küchen mit Siemens-Geräten. Raumhohe Fenster maximieren das natürliche Licht und verbessern die Verbindung zwischen Innen- und Außenräumen. Die meisten Einheiten verfügen über zwei Tiefgaragenstellplätze, und ausgewählte Häuser bieten auch einen privaten Abstellraum. Gemeinschaftsbereiche im Resort-Stil Im Herzen der Wohnanlage befindet sich ein Swimmingpool für die Bewohner mit großzügigen Sonnenterrassen, die eine ruhige Atmosphäre im Resort-Stil schaffen. Dieser Gemeinschaftsbereich ist ideal, um sich nach einer Runde Golf zu entspannen oder das mediterrane Klima mit Familie und Freunden zu genießen. Hervorragende Anbindung und nahegelegene Annehmlichkeiten Der Golfplatz Miraflores ist etwa 1 km entfernt, was diese Wohnanlage ideal für Golfbegeisterte macht. Die Strände von Calahonda sind etwa 1,4 km von den Wohnungen entfernt und bieten eine große Auswahl an Strandbars und Wassersportaktivitäten. Marbella und La Cala de Mijas sind beide mit dem Auto leicht zu erreichen, während der Flughafen Malaga über die Hauptküstenstraße gut angebunden ist. Wichtige Entfernungen zu Sehenswürdigkeiten Miraflores Golf: 1 km Strand von Calahonda: 1,4 km La Cala de Mijas: 6 km Marbella: 15 km Yachthafen Puerto Banús: 18 km Flughafen Málaga: 35 km Sichern Sie sich Ihr Haus mit Meerblick an der Costa del Sol Kontaktieren Sie uns noch heute, um weitere Informationen zu erhalten oder eine private Besichtigung dieser exklusiven neu gebauten Reihenhäuser in der Nähe des Miraflores Golf in Calahonda zu vereinbaren.
Diese hier angegebenen Informationen können Fehler enthalten und sind nicht Bestandteil eines Vertrages. Das Angebot kann ohne vorherige Ankündigung geändert oder zurückgezogen werden. Preise beinhalten keine Kaufnebenkosten.