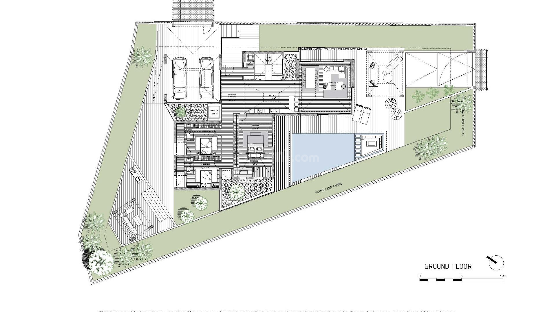
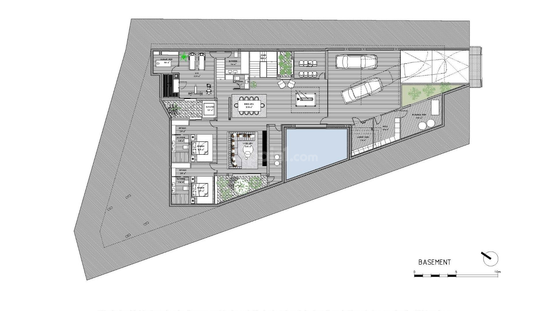
Exclusiva villa de lujo en Nueva Andalucía, Marbella, con comodidades de primera clase Prestigiosa ubicación en el valle del golf de Marbella Disfrute de una vida de lujo excepcional en esta magnífica villa de nueva construcción situada en el corazón de Nueva Andalucía, una de las zonas residenciales más exclusivas de Marbella. Rodeada de exuberantes campos de golf y a pocos minutos del mundialmente famoso Puerto Banús, esta propiedad ofrece una elegancia refinada, privacidad y proximidad a las mejores comodidades de la Costa del Sol. Nueva Andalucía es conocida por sus elegantes avenidas, sus prestigiosos clubes de golf y su ambiente tranquilo, lo que la convierte en el lugar ideal para quienes buscan comodidad y sofisticación. Arquitectura moderna y amplios espacios habitables Situada en una amplia parcela de más de 1014 metros cuadrados, esta excepcional villa cuenta con aproximadamente 650 metros cuadrados de superficie construida, incluidos 534 metros cuadrados dedicados a lujosas estancias interiores. Diseñada con una arquitectura contemporánea, techos altos y una fluida transición entre el interior y el exterior, la distribución maximiza la luz natural y ofrece una combinación perfecta de comodidad y estilo. Características interiores de lujo y distribución espaciosa La vivienda cuenta con cinco amplios dormitorios, cada uno con su propio cuarto de baño, lo que crea un refugio privado para cada residente. La suite principal cuenta con un lujoso cuarto de baño, un vestidor y unas tranquilas vistas al entorno ajardinado. Dos baños adicionales para invitados añaden comodidad y elegancia. La sala de estar y el comedor de planta abierta dan paso a una cocina de última generación, diseñada tanto para la vida cotidiana como para el entretenimiento extraordinario. Espacios de bienestar y entretenimiento Esta villa ofrece excepcionales comodidades, como un gimnasio totalmente equipado, un lujoso spa con sauna y hammam, una sala de cine, un sofisticado bar y sala de juegos, y un ascensor. El garaje subterráneo tiene capacidad para dos coches, con aparcamiento adicional en la planta baja para dos vehículos más. La calefacción por suelo radiante con control domótico y el aire acondicionado por conductos mediante el sistema Airzone garantizan el confort durante todo el año. Vida al aire libre y piscina privada Diseñada para una elegante vida al aire libre, la villa cuenta con una amplia terraza, una zona de cocina exterior y una impresionante piscina infinita rodeada de exuberantes jardines. El escenario perfecto para relajarse y divertirse al auténtico estilo mediterráneo. Distancias a puntos de interés Club de golf Las Brisas 1 km Puerto deportivo de Puerto Banús 3 km Club de golf Aloha 2 km Centro de Marbella 7 km Aeropuerto de Málaga 60 km Disfrute de una vida mediterránea exclusiva Esta villa, una auténtica obra maestra, ofrece una elegancia inigualable y un estilo de vida privilegiado en una de las ubicaciones más deseadas de Marbella. Póngase en contacto con nosotros hoy mismo para concertar una visita privada y asegurarse esta extraordinaria propiedad.
Esta información que se proporciona aquí está sujeta a errores y no forma parte de ningún contrato. La oferta se puede cambiar o retirar sin previo aviso. Los precios no incluyen los costes de compra