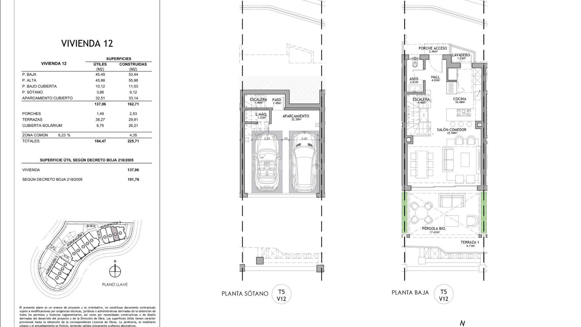
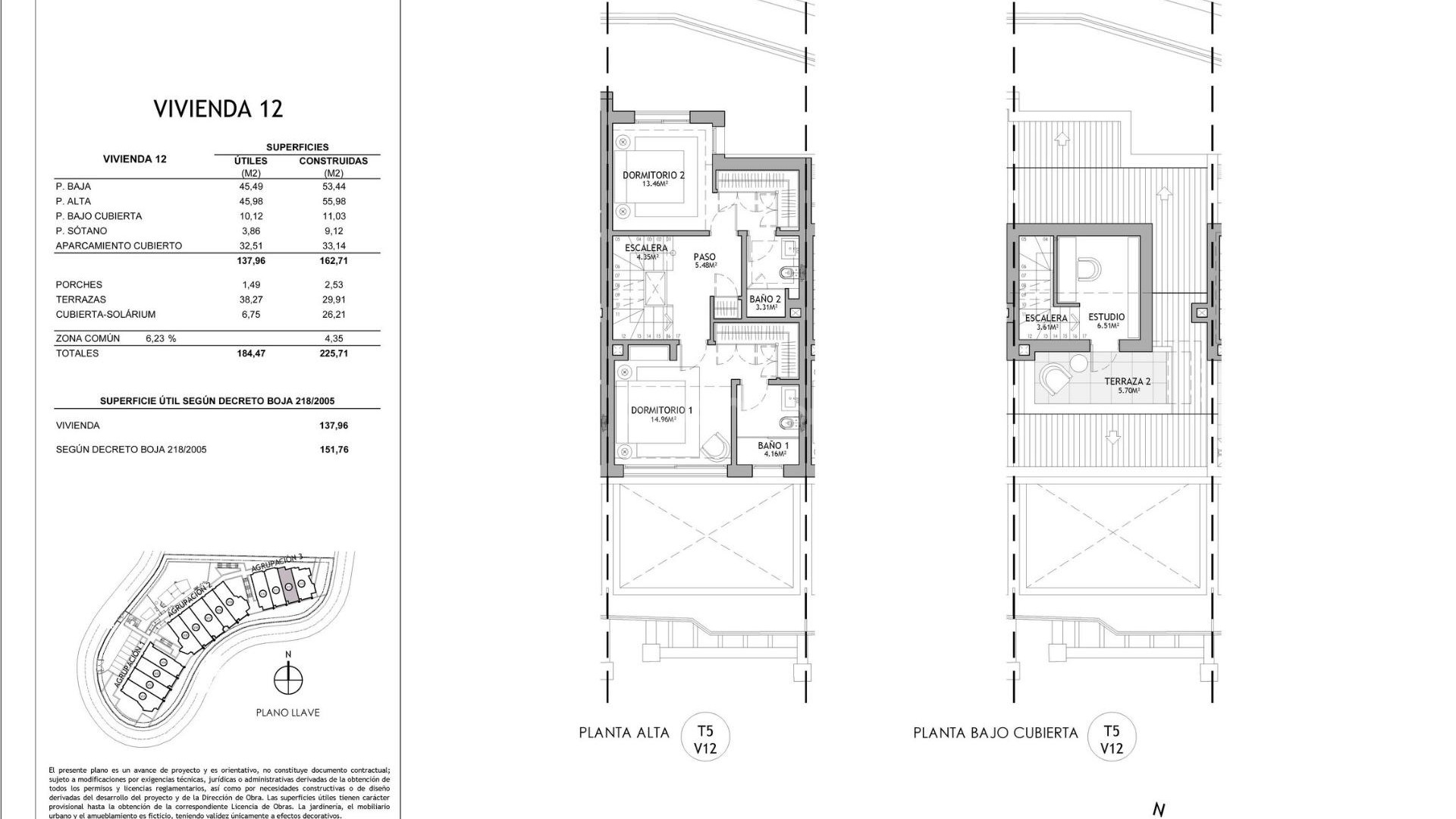
Nybyggede rekkehus med havutsikt nær Miraflores Golf Calahonda Boutique-boliger i en førsteklasses beliggenhet i Calahonda Dette eksklusive nybyggprosjektet består av en boutique-samling på bare 13 rekkehus med to og tre soverom og hjørnehus på en høytliggende tomt nær Miraflores Golf i Calahonda. Området er kjent for sin fredelige boligatmosfære, samtidig som det tilbyr utmerket tilgang til strender, golfbaner og daglige tjenester. Calahonda ligger mellom Marbella og Fuengirola, noe som gjør det til et av de mest praktiske og etablerte stedene på Costa del Sol. Boliger med sjøutsikt, privatliv og orientering Hver bolig har åpen sjøutsikt fra alle etasjer takket være sin høye beliggenhet og nøye orientering. Solariumene på taket tilbyr imponerende panoramautsikt over Middelhavskysten og skaper et privat utendørs fristed for hver boligeier. Orientering og arkitektonisk skjerming sikrer en perfekt balanse mellom privatliv og uforstyrret utsikt. Romslige terrasser og åpen planløsning Rekkehusene er designet for å utvide boarealet utendørs med romslige terrasser som er ideelle for å spise, slappe av eller nyte havbrisen. Åpen planløsning forbinder kjøkken, spisestue og stue med direkte tilgang til terrasser, noe som skaper lyse og luftige rom med uavbrutt utsikt mot havet. Noen boliger har også private hager i første etasje. Fleksible planløsninger for moderne boende Boligene er fordelt på to etasjer pluss et privat solarium på taket. Første etasje har en åpen stue og spisestue med integrert kjøkken, vaskerom og gjestetoalett. Øverste etasje har to eller tre doble soverom og to bad, inkludert et hovedsoverom med eget bad. Flere solarium på taket har et studio som gir ekstra allsidig plass til hjemmekontor eller fritidsområde. Førsteklasses spesifikasjoner og komfortfunksjoner Alle eiendommene er bygget med materialer av høy kvalitet og moderne systemer. Funksjonene inkluderer fullt installert klimaanlegg med aerotermisk system og fullt utstyrte kjøkken med Siemens-apparater. Vinduer fra gulv til tak maksimerer naturlig lys og forbedrer forbindelsen mellom innendørs og utendørs områder. De fleste enhetene har to underjordiske parkeringsplasser, og utvalgte boliger har også et privat bod. Fellesområder i resort-stil I hjertet av boligkomplekset ligger et svømmebasseng for beboerne med romslige solterrasser designet for å skape et rolig miljø i resort-stil. Dette fellesområdet er ideelt for å slappe av etter en runde golf eller nyte middelhavsklimaet med familie og venner. Utmerket tilknytning og nærliggende fasiliteter Miraflores Golf ligger omtrent 1 km unna, noe som gjør dette prosjektet ideelt for golfentusiaster. Calahonda-strendene ligger rundt 1,4 km fra boligene og tilbyr et bredt utvalg av strandbarer og vannaktiviteter. Marbella og La Cala de Mijas ligger begge innenfor kort kjøreavstand, mens Malaga lufthavn har gode forbindelser via hovedveien langs kysten. Viktige avstander til interessante steder Miraflores Golf: 1 km Calahonda-stranden: 1,4 km La Cala de Mijas: 6 km Marbella: 15 km Puerto Banus marina: 18 km Malaga lufthavn: 35 km Sikre deg din bolig med havutsikt på Costa del Sol Kontakt oss i dag for mer informasjon eller for å avtale en privat visning av disse eksklusive nybygde rekkehusene nær Miraflores Golf i Calahonda.
Denne informasjonen gitt her er underlagt feil og inngår ikke i noen kontrakt. Tilbudet kan endres eller trekkes tilbake uten varsel. Prisene inkluderer ikke andre kostnader