New Build » Apartment » Mijas » Las L

Apartment in Las Lagunas

Price € 368.900
Price € 368.900
  • Price € 368.900
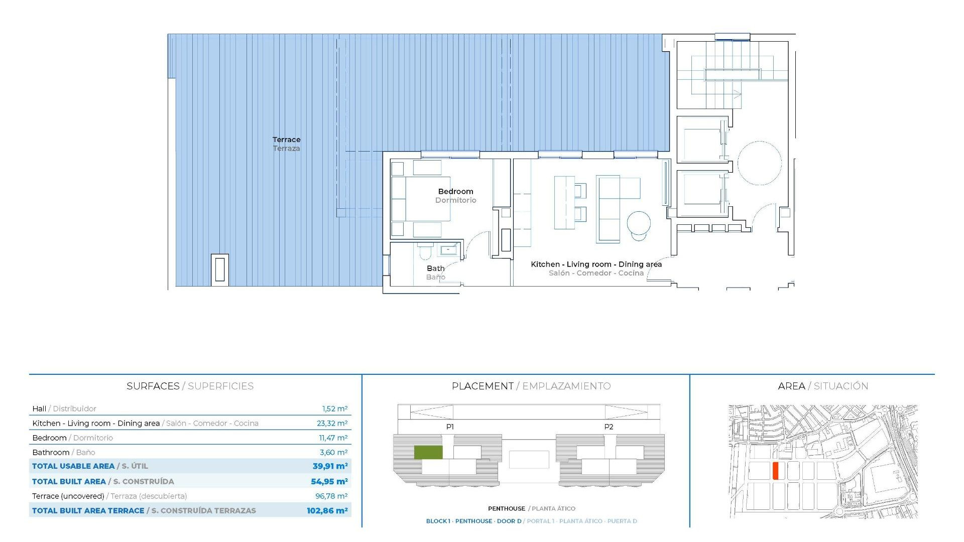
  • Bedrooms 1
  • Bathrooms 1
  • Built 54m2

Apartment in Las Lagunas, Features & details

Property ID:
S-93680
Bedrooms:
1
Bathrooms:
1
Price:
€ 368.900
Taxes:
€ 49.802
Total price:
€ 418.702
Total price* Property price + costs and taxes approx. 13.5%
Property Status:
New Build
Property type:
Apartment
Year of construction:
Built:
54m2
Parking:
Swimmingpool:
Yes
Gym
Parking
Gated
BBQ
Communal Pool
Elevator/Lift
Number of Parking Spaces: 1
Near Schools
Near Commercial Center
Near Bus Route
Location: Coastal, Urbanisation
Air Conditioning: Yes
Double Bedrooms: 1
Beach: 1800 Meters
Terrace: 96 Msq.

Finances

This info given here is subject to errors and do not form part of any contract. The offer can be changed or withdrawn without notice. Prices do not include purchase costs.

Buying with mortgage

Currency exchange

  • Pounds: 321.563 GBP
  • Russian ruble: 321.563 RUB
  • Swiss franc: 340.532 CHF
  • Chinese yuan: 2.969.018 CNY
  • Dollar: 435.191 USD
  • Swedish krona: 3.985.227 SEK
  • The Norwegian crown: 4.064.171 NOK

Responsible Agent

Markus Lundberg
Markus Lundberg
Co-founder and Real Estate Agent Phone: +47 905 42 256 Email: markus@spain1.com

Get in touch for more details about this property:

Responsable del tratamiento: Grupo Noruego Costa Blanca, SL, Finalidad del tratamiento: Gestión y control de los servicios ofrecidos a través de la página Web de Servicios inmobiliarios, Envío de información a traves de newsletter y otros, Legitimación: Por consentimiento, Destinatarios: No se cederan los datos, salvo para elaborar contabilidad, Derechos de las personas interesadas: Acceder, rectificar y suprimir los datos, solicitar la portabilidad de los mismos, oponerse altratamiento y solicitar la limitación de éste, Procedencia de los datos: El Propio interesado, Información Adicional: Puede consultarse la información adicional y detallada sobre protección de datos Aquí.

Make an enquiry

Responsable del tratamiento: Grupo Noruego Costa Blanca, SL, Finalidad del tratamiento: Gestión y control de los servicios ofrecidos a través de la página Web de Servicios inmobiliarios, Envío de información a traves de newsletter y otros, Legitimación: Por consentimiento, Destinatarios: No se cederan los datos, salvo para elaborar contabilidad, Derechos de las personas interesadas: Acceder, rectificar y suprimir los datos, solicitar la portabilidad de los mismos, oponerse altratamiento y solicitar la limitación de éste, Procedencia de los datos: El Propio interesado, Información Adicional: Puede consultarse la información adicional y detallada sobre protección de datos Aquí.

Agent

Markus Lundberg
Markus Lundberg
Co-founder and Real Estate Agent Phone: +47 905 42 256 Email: markus@spain1.com

WhatsApp