Luxury New Build Villas, Apartments and Townhouses in San Pedro de Alcantara Marbella Exclusive Residential Development Near the Beach Discover this exceptional new development offering a unique collection of villas, townhouses and apartments in San Pedro de Alcantara, one of the most desirable areas on the Costa del Sol. Ideally located just 800 meters from the Mediterranean Sea and next to the vibrant boulevard, this project combines modern living with an unbeatable location. Surrounded by green areas and within walking distance of the town center, residents enjoy easy access to restaurants, shops, cafes and all essential services. San Pedro de Alcantara is known for its relaxed atmosphere, beautiful promenade and proximity to Marbella, making it a prime destination for both permanent living and holiday homes. Wide Selection of Contemporary Homes This boutique development includes 38 exclusive residences and a limited number of commercial units. Buyers can choose from 11 luxury villas, 10 modern townhouses and 17 stylish apartments, all designed with elegant architecture and high quality finishes. Apartments are available with one, two or three bedrooms, offering options such as ground floors with private gardens or top floor units with terraces and solariums. Each apartment includes underground parking and a storage room with elevator access. Spacious Townhouses with Private Solarium The townhouses offer three or four bedrooms and three bathrooms, with spacious layouts distributed over several levels. Most units include a private elevator connecting all floors, underground parking for two cars and additional versatile space that can be used as a gym, games room or office. The ground floor features an open plan living area with direct access to terraces and patios, while the upper floor includes bedrooms with en suite bathrooms. A private rooftop solarium completes the property, ideal for enjoying the Mediterranean climate. Premium Villas with Private Pool and Basement The villas are set on plots of over 300 m2 and offer five or six bedrooms distributed across basement, 2 main floors and rooftop solarium connected with a private lift. Each villa includes a private pool, garden and spacious interiors designed for luxury living. The basement level provides parking, additional bedrooms and flexible space for leisure or work. The ground floor connects seamlessly with outdoor terraces and private pool, while the upper floor offers en suite bedrooms and open views. High Quality Finishes and Modern Comfort All properties are built to the highest standards, featuring fully installed air conditioning, underfloor heating, designer kitchens with Siemens appliances and reinforced security doors with alarm systems. Prime Location Close to Golf and Key Destinations This development is perfectly located with Guadalmina Golf Club just 1.2 km away, the beach at 0.8 km and San Pedro boulevard at 0.6 km. Marbella is 10 km away and Malaga Airport is approximately 65 km, ensuring excellent connectivity. Ideal Investment on the Costa del Sol This exclusive development offers a rare opportunity to own a luxury property in one of the most sought after areas of Marbella. Contact us today for more information or to arrange a viewing and secure your new home in San Pedro de Alcantara.
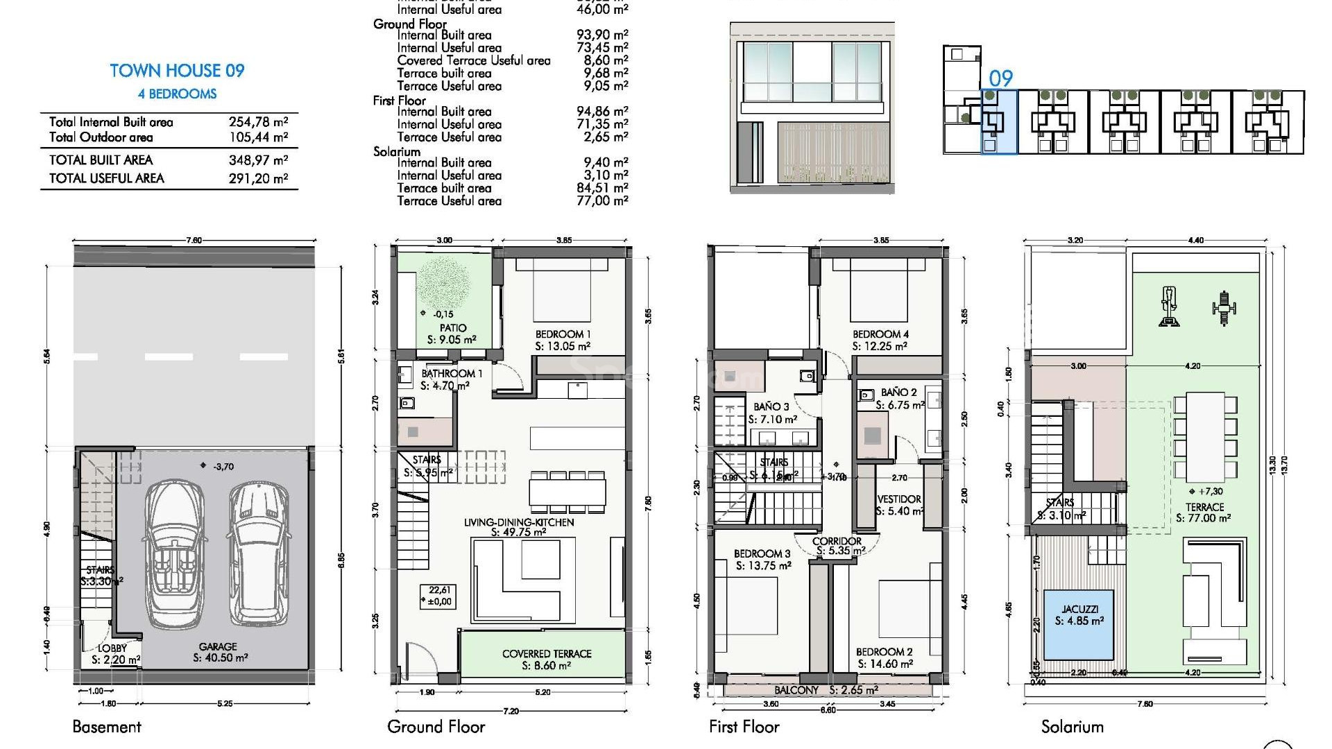
This info given here is subject to errors and do not form part of any contract. The offer can be changed or withdrawn without notice. Prices do not include purchase costs.