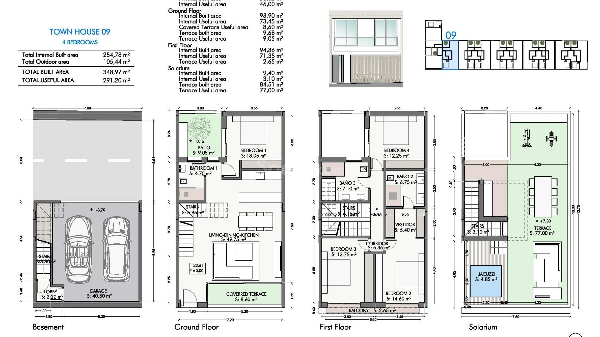
Lyxiga nybyggda villor, lägenheter och radhus i San Pedro de Alcantara Marbella Exklusivt bostadsprojekt nära stranden Upptäck detta exceptionella nya projekt som erbjuder en unik samling villor, radhus och lägenheter i San Pedro de Alcantara, ett av de mest eftertraktade områdena på Costa del Sol. Idealiskt beläget bara 800 meter från Medelhavet och intill den livliga boulevarden, kombinerar detta projekt modernt boende med ett oslagbart läge. Omgivet av grönområden och inom gångavstånd från stadens centrum, har de boende enkel tillgång till restauranger, butiker, kaféer och alla viktiga tjänster. San Pedro de Alcantara är känt för sin avslappnade atmosfär, vackra strandpromenad och närhet till Marbella, vilket gör det till ett utmärkt resmål för både permanent boende och fritidshus. Brett utbud av moderna hem Detta boutiqueprojekt omfattar 38 exklusiva bostäder och ett begränsat antal kommersiella enheter. Köpare kan välja mellan 11 lyxvillor, 10 moderna radhus och 17 eleganta lägenheter, alla designade med elegant arkitektur och högkvalitativa ytbehandlingar. Lägenheterna finns tillgängliga med ett, två eller tre sovrum, med alternativ som bottenvåningar med privata trädgårdar eller översta våningen med terrasser och solarium. Varje lägenhet inkluderar garage och förråd med hiss. Rymliga radhus med privat solarium Radhusen erbjuder tre eller fyra sovrum och tre badrum, med rymliga planlösningar fördelade över flera våningar. De flesta enheterna har en privat hiss som förbinder alla våningar, garage för två bilar och ytterligare mångsidigt utrymme som kan användas som gym, spelrum eller kontor. Bottenvåningen har en öppen planlösning med direkt tillgång till terrasser och uteplatser, medan övervåningen har sovrum med eget badrum. Ett privat takterrass kompletterar fastigheten, perfekt för att njuta av Medelhavsklimatet. Premiumvillor med privat pool och källare Villorna ligger på tomter på över 300 m2 och erbjuder fem eller sex sovrum fördelade över källaren, 2 huvudvåningar och takterrass anslutet med en privat hiss. Varje villa har en privat pool, trädgård och rymliga interiörer utformade för lyxigt boende. Källarvåningen erbjuder parkering, ytterligare sovrum och flexibelt utrymme för fritid eller arbete. Bottenvåningen ansluter sömlöst till utomhusterrasser och privat pool, medan övervåningen erbjuder sovrum med eget badrum och öppen utsikt. Högkvalitativa ytbehandlingar och modern komfort Alla fastigheter är byggda enligt högsta standard, med fullt installerad luftkonditionering, golvvärme, designkök med Siemens-apparater och förstärkta säkerhetsdörrar med larmsystem. Utmärkt läge nära golf och viktiga destinationer Detta område är perfekt beläget med Guadalmina Golf Club bara 1,2 km bort, stranden 0,8 km och San Pedro boulevard 0,6 km. Marbella ligger 10 km bort och Malagas flygplats ligger cirka 65 km, vilket säkerställer utmärkta förbindelser. Idealisk investering på Costa del Sol Detta exklusiva område erbjuder en sällsynt möjlighet att äga en lyxfastighet i ett av de mest eftertraktade områdena i Marbella. Kontakta oss idag för mer information eller för att boka en visning och säkra ditt nya hem i San Pedro de Alcántara.
Denna information kan innehålla fel och ingår inte i något kontrakt. Erbjudandet kan ändras eller tas bort utan förvarning. Priser inkluderar inte köpavgifter.